Edificio residenziale - Nuova edificazione, Milano 2005-2006

                                                                 Progetto di un immobile residenziale sito
in contesto storico costituito da lotti

omogenei con edifici e giardini della prima

metà del ‘900.

Si mantiene la coerenza tipologica con

l’esistente, realizzando un nuovo volume

ad “elle” composto da due corpi ortogonali

a 4 piani con tetto a falde (Slp. 3.150 mq).

L’edificio presenta un lato urbano verso

strada ed un corpo interno, sul lato nord

del lotto, lasciando intatta la parte più

consistente del giardino, con gli alberi ad alto

fusto, ed ottimizzando la visione prospettica

degli spazi a verde adiacenti.

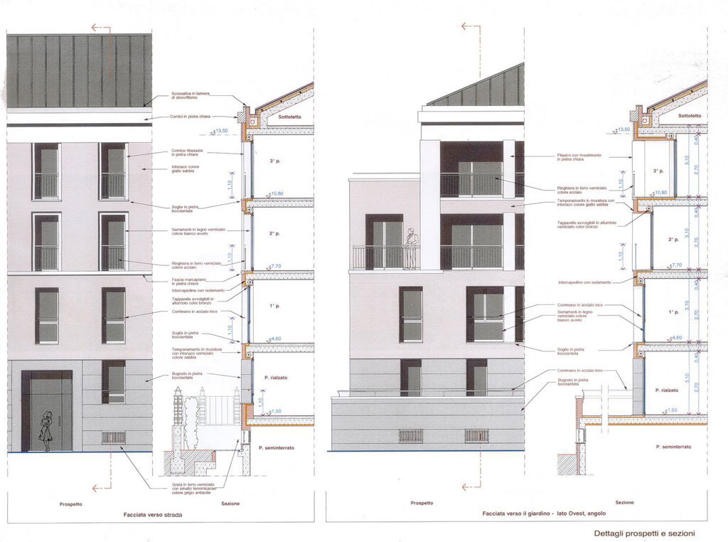
La facciata su strada, scandita da ordini

regolari di finestre rettangolari, è più chiusa,

mentre i prospetti interni sono mossi da

logge e grandi vetrate verso il giardino per

godere del verde e del silenzio. Sul lato Nord

del lotto è ricavato l’accesso di servizio al

giardino ed ai tre piani di box sotterranei.

 

 
© Antonio Zanuso